![]() |
As obras de requalificação do edifício do Mercado Municipal e da revitalização da Avenida Dr. Ângelo Henriques Vidigal e envolvente do mercado foram apresentadas em sessão pública, no edifício dos Paços do Concelho da Sertã, a 18 de fevereiro. A sessão contou com uma boa adesão de comerciantes e moradores da zona que será alvo dos referidos trabalhos de requalificação. |
José Farinha Nunes, Presidente da Câmara Municipal da Sertã, no início da sessão, contextualizou as obras, referindo tratar-se da segunda fase do Plano de Ação de Regeneração Urbana, iniciado com a revitalização da Avenida Gonçalo Rodrigues Caldeira (concluída em 2017). "Quer o mercado, quer a Avenida Dr. Ângelo Henriques Vidigal, ficarão indiscutivelmente melhores depois destas intervenções profundas", referiu o autarca.
Na Avenida Dr. Ângelo Henriques Vidigal os trabalhos terão início a 18 de março e desenvolver-se-ão durante quatro meses. A intervenção contempla a reformulação das faixas de rodagem, reordenamento das bolsas de estacionamento, redefinição das zonas pedonais, assim como renovação das infra-estruturas de abastecimento de água, drenagem de águas residuais domésticas e pluviais e de eletricidade. Está projetado o alargamento da avenida no seu troço inicial (sul) e a redefinição da área poente ao Edifício do Mercado, que se destinará a estacionamento e circulação pedonal. A obra criará condições de acessibilidades com a anulação de desníveis entre pavimentos na envolvente do edifício do Mercado e recinto da Igreja Matriz da Sertã. O projecto contempla também a ampliação do estacionamento na Travessa da Ramalhosa com ligação à Rua Cândido dos Reis, reparação e pintura de paredes públicas envolventes, sobretudo ao longo da avenida, instalação de contentores enterrados de recolha de resíduos sólidos urbanos e instalação de mobiliário urbano (bancos, papeleiras e floreiras). Também a iluminação vai ser renovada, na envolvente ao mercado com a substituição das armaduras eléctricas existentes por luminárias em LED. O investimento global da revitalização da Avenida Dr. Ângelo Henriques Vidigal e envolvente do mercado é de 325.706,21€ (IVA incluído).
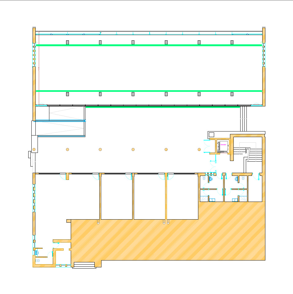
A intervenção no Edifício do Mercado Municipal contempla a substituição da cobertura atual por painel sandwich e chapa de vidro, renovação e criação de instalações sanitárias com condições de acessibilidade a cidadãos de mobilidade reduzida, execução de novos revestimentos no interior (paredes e pavimentos) e criação de novos postos de venda mais funcionais e com boas condições de higiene. As lojas situadas no mercado, para além de terem entrada pelo interior do edifício, passarão a ter entrada também pelo exterior do edifício, permitindo que o mercado possa funcionar mais do que um dia por semana. Serão construídas rampas de inclinação em substituição de escadas, elevador para acesso entre pisos e remodelação da rede eléctrica (com aplicação de luminárias em LED) e das redes de águas, saneamento e águas pluviais. Esta obra pretende conferir polivalência funcional ao edifício, através da requalificação das suas funções tradicionais e da instalação de espaços multifuncionais capacitados para albergar outro tipo de eventos, permitindo a sua transformação num conjunto arquitectónico mais amplo, aberto e iluminado, possibilitando uma utilização quotidiana. O início da intervenção no edifício do Mercado Municipal está previsto para o final de abril, devendo estender-se durante dez meses. Tem um investimento total de 688.881,83€ (IVA incluído). Refira-se que, durante a obra, o mercado funcionará em instalações provisórias localizadas no parque de feiras.



